Mangusta MAXI OPEN 110 - 2020












































MANGUSTA MAXI OPEN 110 – A Luxury Supercar on Water
The Mangusta Maxi Open 110 is an elegant and powerful motor yacht that combines sporty performance, luxurious comfort, and cutting-edge technology. Built by the renowned Italian shipyard Overmarine Group, this model is designed for those who appreciate high speed, sleek design, and superior craftsmanship.
✨ Design & Comfort:
✔ Modern exterior with sleek, aerodynamic lines and large panoramic windows.
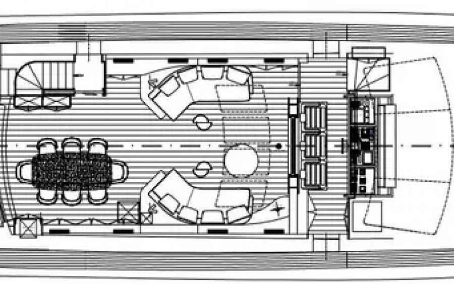
✔ Expansive outdoor living areas: spacious flybridge, bow lounge, and aft deck.
✔ Minimalist, high-end interior: luxurious finishes with marble, carbon fiber, wood, and leather.
✔ Retractable sunroof in the salon, creating a perfect blend of open and enclosed spaces.
✔ Capacity:
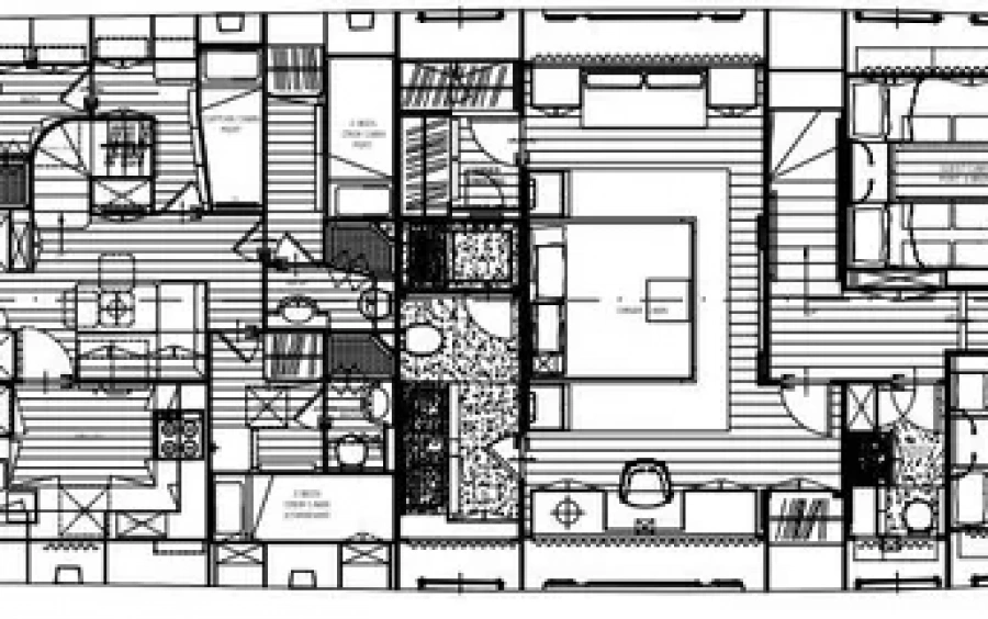
4 cabins (accommodating up to 9 guests).
Crew: up to 5 members.
MORE
The Mangusta Maxi Open 110 is an elegant and powerful motor yacht that combines sporty performance, luxurious comfort, and cutting-edge technology. Built by the renowned Italian shipyard Overmarine Group, this model is designed for those who appreciate high speed, sleek design, and superior craftsmanship.
✨ Design & Comfort:
✔ Modern exterior with sleek, aerodynamic lines and large panoramic windows.
✔ Expansive outdoor living areas: spacious flybridge, bow lounge, and aft deck.
✔ Minimalist, high-end interior: luxurious finishes with marble, carbon fiber, wood, and leather.
✔ Retractable sunroof in the salon, creating a perfect blend of open and enclosed spaces.
✔ Capacity:
4 cabins (accommodating up to 9 guests).
Crew: up to 5 members.
- Length33,53 m
- Beam7,18 m
- Weight135000 kg
- Draft, max1,7 m
- Max power2*2600 hp
- Max Speed33 mile/hour
- Cruise speed25 mile/hour
- Water tank2000 l.
- Cabins1 OWNER, 1 VIP, 2 GUEST
- Toiletyes
- Work time494
- Fuel capacity13000 l.
- Engines
2*MTU 16V 2000 M96L
2*2600hp
- Length33,53 m
- Beam7,18 m
- Weight135000 kg
- Draft, max1,7 m
- Max power2*2600 hp
- Max Speed33 mile/hour
- Cruise speed25 mile/hour
- Water tank2000 l.
- Cabins1 OWNER, 1 VIP, 2 GUEST
- Toiletyes
- Work time494
- Fuel capacity13000 l.


