Riva 88' Folgore




































































Folgore means "lightning" in Italian. This lowered yacht has a predatory, sporty profile that is heavily influenced by automotive design. Carbon details are combined with traditional Riva styling elements. The new signature feature of Riva boats is a windshield with a reverse slope at the bottom.
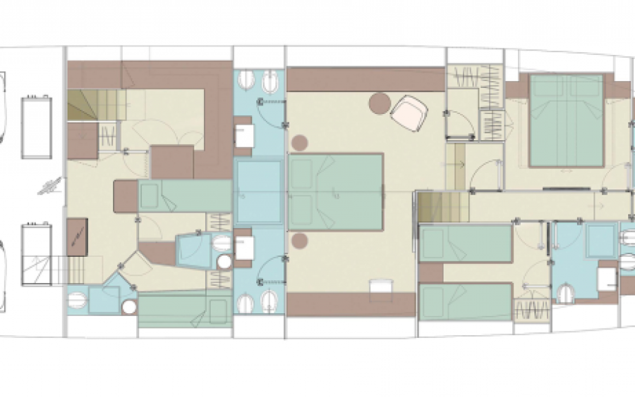
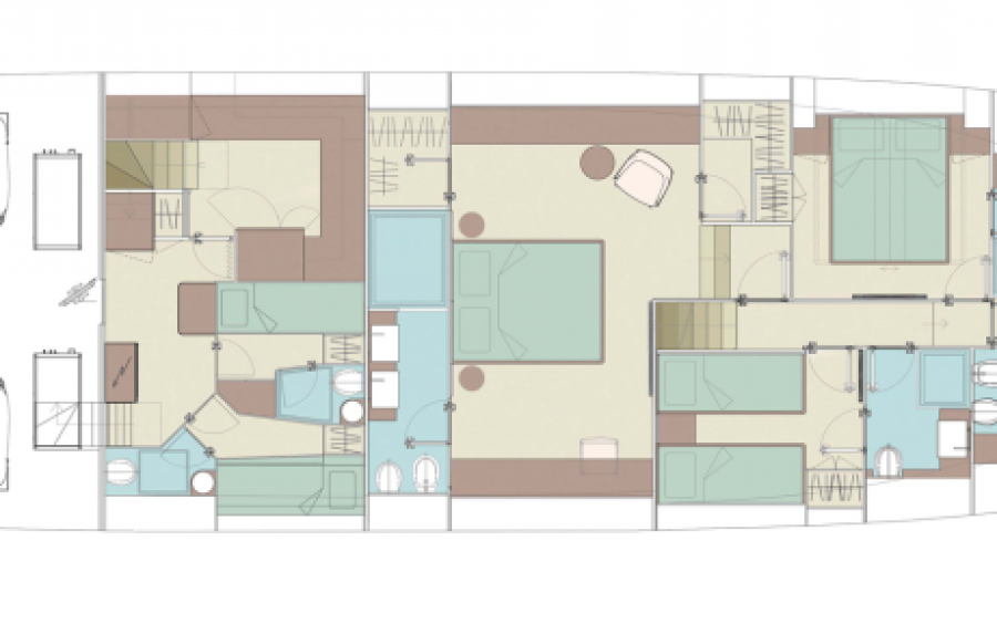
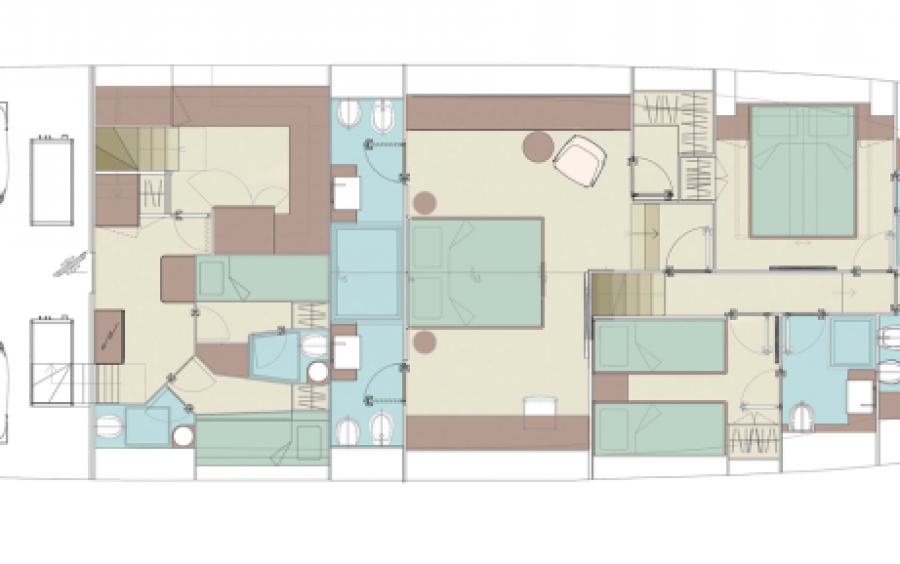
Sunbathing areas are located at the bow on the main deck and to the right and left of the helm station on the upper deck. The cockpit boasts a spacious seating area and a bar. There are three layout options with a different number of cabins. The first hull on the lower deck has four cabins with bathrooms, a VIP cabin and a 24 sq. m master suite with a ceiling 220 cm high.
The interior boldly combines precious woods, steel, natural marble and glass. In the roof of the main salon there is a polarized glass panel with sun blinds, which opens on the course or against the course of the yacht. The opened garage door easily transforms the space into a large beach club. If you fix the platform at an angle, you will get a slip for easy lowering or lifting the tender.
- Brand
- Length26,92 m
- Length platform26.92 m
- Beam6,31 m
- Weight70000 kg
- Draft, max1,97 m
- Max power5276
- Max Speed38 mile/hour
- Range of travel350
- Water tank1200 l.
- Decks3
- People on board20 people
- Crew3 people
- Cabins4+2
- Toiletyes
- Fuel capacity8000 l.
- Engines
ENGINES SPECIFICATIONS
- Standard: 2 x MTU 16V 2000 M96 - power 2435mhp / 1792kW a 2450 rpm/min
- Optional: 2 x MTU 16V 2000 M96L - power 2638mhp / 1939kW a 2450 rpm/min
ExWorks in Italy. Does not include VAT, customs clearance and logistics.
- Brand
- Length26,92 m
- Length platform26.92 m
- Beam6,31 m
- Weight70000 kg
- Draft, max1,97 m
- Max power5276
- Max Speed38 mile/hour
- Range of travel350
- Water tank1200 l.
- Decks3
- People on board20 people
- Crew3 people
- Cabins4+2
- Toiletyes
- Fuel capacity8000 l.






